【推荐】北京发展大厦有限公司100股权及相关债权北京屹立由数据公司

概要

(1)北京发展大厦有限公司成立于1986年10月,曾是由北京首都开发股份有限公司与日本野村•中国投资株式会社共同投资设立的独立法人中日合资企业,于2018年3月改制,成为北京首都开发股份有限公司的独资子公司。(2)北京发展大厦于1987年4月开工建设,1990年4月11日正式运营,是北京市最早建成的国际化智能写字楼之一。该工程曾荣获1989年度北京市优质工程“长城杯金质奖”、国家建设部“1990年度建设工程鲁班奖”。大厦位于北京市朝阳区东三环燕莎商圈和三元桥国门经济圈,距离地铁10号线亮马桥站A出口150m,地理位置优越,交通便利。(3)公司主营业务包括写字楼出租、会议室出租和公关客服。

【资格】

交易条件

转让底价203922.1969万元,一次性付款,保证金61176.659万元。

公司简介

北京发展大厦有限公司成立于1986年10月,曾是由北京首都开发股份有限公司与日本野村•中国投资株式会社共同投资设立的独立法人中日合资企业,于2018年3月改制,成为北京首都开发股份有限公司的独资子公司。公司自成立以来,中日投资双方相互配合、密切协作,一直保持着良好的合作关系,成为中日合资企业中的典范。迄今已逾30年,公司努力发扬“追求卓越、共谋发展”的企业精神,坚持“优质、高效、创新、奉献”的服务方针,历经艰苦创业、努力开拓、适时调整、发展壮大的各个时期,克服了诸多的困难,取得了骄人的成绩。

北京发展大厦

1、项目简介

北京发展大厦于1987年4月开工建设,1990年4月11日正式运营,是北京市最早建成的国际化智能写字楼之一。其独树一帜的设计风格、历久弥新的建筑品质,在各式建筑鳞次栉比的燕莎商圈中凸显出无以比拟的庄重与尊贵。同时,这座由中日携手打造,久经风雨考验的“精英老字号”写字楼,屹立于华贵的燕莎商圈可谓是锦上添花。该工程曾荣获1989年度北京市优质工程“长城杯金质奖”、国家建设部“1990年度建设工程鲁班奖”。

2、区位交通

大厦位于北京市朝阳区东三环燕莎商圈和三元桥国门经济圈,地理位置十分优越。

道路交通:东三环主路、首都机场高速路

轨道交通:地铁10号线亮马桥站A出口(150m)

公交线路:燕莎桥东站、燕莎桥西站、燕莎桥南站、燕莎桥北站、三元东桥西站,几十条公交线路汇聚周边

商圈距离:国贸商圈(5km),中关村(14km),望京(6km),金融街(12km)

3、周边环境

北京发展大厦地处“第三使馆区”,是京城最成熟的综合涉外商务区之一。

大厦与凯宾斯基饭店、金茂北京威斯汀酒店、昆仑饭店、长城饭店、希尔顿饭店、燕莎商城比邻而立,周边聚集了亮马河大厦、启皓大厦、南银大厦、外交办公大楼等高档楼宇,商务氛围浓厚;三里屯酒吧街、好运街、朝阳公园等休闲娱乐场所近在咫尺;附近几乎齐聚了世界各大洲的风味餐馆,美国、南美、日本、意大利、韩国等各国的特色餐饮一应俱全;中日友好医院、朝阳医院、SOS国际救援中心一箭之遥,医疗条件成熟完备。

经营业务

1、写字楼出租

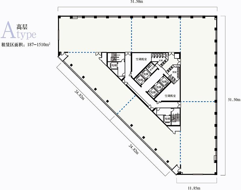
(1)平面图展示

(2)楼层规划

2、会议室出租

会议室租赁:大厦的会议室设施设备齐全,可为各种类型的商务会议、活动提供会议室出租服务。

会议室平面图

3、公关客服

北京发展大厦对客户提供全方位的服务,有求必应是我们的一贯宗旨。大厦一年一度的新春名片交换会、高尔夫亲睦大赛、秋季爬山活动等互动节目,不仅是为了回报客户、表达谢意、提高品牌知名度,同时也是拉近客户之间的距离,增进交流的绝佳机会。

财务状况

股权结构

重要信息披露

1.本次转让底价为203922.1969万元,其中北京发展大厦有限公司100%股权的挂牌价格为人民币188262.1969元,转让方对标的企业债权15660万元对应的挂牌价格为人民币15660.00万元,若本项目形成竞价,成交价格的增值部分为本项目股权部分的溢价。

2.标的企业签署了整体运营合同,合同有效期至2028年,合同期间发展大厦物业产生的租金53.4%归属标的企业,相关合同置于转让处备查。

3.本项目资产评估报告中“特别事项说明”提醒意向受让方特别关注,其他详见资产评估报告、审计报告、法律意见书等其他相关资料,详见备查文件。

项目图片

轴类测量机

影像测量仪系统

光学系统测试

上一篇: 【推荐】北京又一超级独角兽来了海富股票基金
下一篇: 【推荐】北京发布45项措施统筹疫情防控稳定经济增长北京京政投资公司
相关推荐

猜你喜欢